Skip to content
About & History
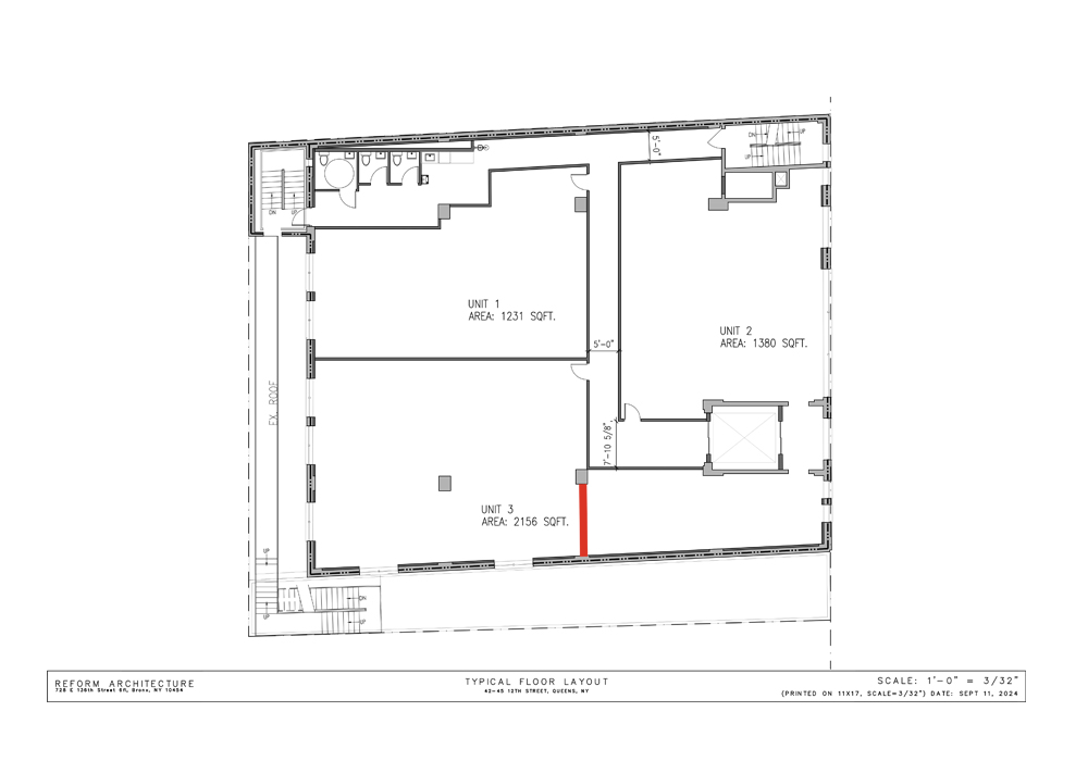
Floor Plans
Gallery
Contact / Location
Basement
Ground Floor
First Floor
Mezzanine Floor
Second Floor
Third to Fifth Floor